Skip to main
trueflame 1000.jpg
Trueflame 1000 1.jpg
Trueflame 1000 2.jpg
trueflame 1000.jpg
Trueflame 1000 1.jpg
Trueflame 1000 2.jpg

Fair Fires Solution TrueFlame 1000 LCD

€3.695,00
Beschikbare opties

De Fair Fires Solution TrueFlame 1000 LCD is een compleet uitgeruste elektrische haard voor in de woonkamer. Dit model brengt sfeer en warmte samen door middel van een hoogwaardig 4K LCD-vlamscherm. Met de keuze uit zeventien HD-effecten en een authentiek houtbed creëer je een realistisch vuurbeeld. Het toestel functioneert tevens als inbouwhaard, waardoor het naadloos in een strakke muur of televisiemeubel past.

Deze haard is zeer gebruiksvriendelijk en beschikt over de volgende eigenschappen:

  • Het omkeerbare vlamscherm biedt de keuze uit gerookt of gespiegeld glas voor extra diepte.
  • Het toestel levert een prettige warmte met een maximaal verwarmend vermogen van 1500W.
  • Je bedient het vuurbeeld en de onderverlichting praktisch via een smartphone-app.
  • De haard bevat een speciale stand voor een digitaal aquarium.

Je plaatst deze haard eenvoudig als fronthaard, hoekhaard of driezijdige panoramahaard in de gewenste ruimte. Omdat er geen rookgasafvoer nodig is, installeer je het apparaat flexibel op een plek naar keuze. Het optionele anti-reflecterende glas zorgt ervoor dat het zicht vanuit elke hoek helder blijft. Dit maakt het een veilige en sfeervolle toevoeging aan vrijwel ieder interieur.

Met de Fair Fires Solution TrueFlame 1000 LCD kies je voor een veelzijdig en overtuigend alternatief voor een traditioneel vuur. Het heldere scherm en de echte houtblokken zorgen voor een authentieke uitstraling in de ruimte. De meegeleverde afstandsbediening maakt het afstellen van de vlammen en kleuren erg toegankelijk.

Als officieel Fair Fires dealer helpen je graag bij het ontwerp, de installatie en de realisatie van jouw ideale haard of kachel.

Brandstof
Elektrisch
Model
Inbouw
Vuuraanzicht
Front, Tweezijdig, Driezijdig
Staat
Nieuw
Vermogen
1 - 2 kW
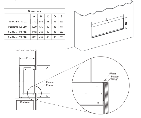
Afmeting (H X B X D)
43,5 x 100 x 21,3 cm
Merk
Fair Fires

Offerte aanvragen

Wij begrijpen dat je op zoek bent naar de Fair Fires Solution TrueFlame 1000 LCD en dat je graag wilt weten wat de kosten zijn voordat je een beslissing neemt. Vul alstublieft het onderstaande formulier in en wij zullen zo spoedig mogelijk contact met jou opnemen.

trueflame 1000.jpg
Fair Fires Solution TrueFlame 1000 LCD
Afspraak maken